
.jpg)
SZ-Ⅱ型水泥散裝機為庫側安裝適用于散裝汽車、火車或般裝料。該機由庫側卸料閥、充氣輸送斜槽和SZ-Ⅰ型散裝機構成,并具有SZ-Ⅰ型散裝機的全部功能
SZ-Ⅱ型散裝機分直通式和非直三角式,根據工藝布置需要而定。
主要技術參數:
裝車能力為:60~300t/h (根據工藝要求定)
裝料口升降高度:1.5-2.5m 任選
整機功率:4kW
整機重量:900-1200kg
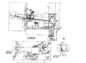
.jpg)
1、庫側給料器 2、鋼絲繩 3、出料聯接槽 4、螺旋閘門 5、卸料閘門 6、斜槽 7、離心風機 8、裝車頭 9、單機除塵器 10、除塵風管 11、料位控制探頭
說明:
一、本散裝機適宜安裝在庫側,裝車能力為60-120t/h;
二、斜槽安裝傾斜角度為6°,當增大或減小傾斜角度時,裝車能力相應變。